400-004-1014
磨削电主轴是高精度磨床的核心部件之一,其加工制造的精度直接影响着最终机床的几何精度和所生产零件的质量。而轴承座则是高精度电主轴磨具中的关键零件,其精度直接影响主轴轴承的运转精度和寿命,进而决定了主机的加工精度和使用寿命。
那如何控制轴承座的精度呢?
轴承座的精度分析及工艺方案
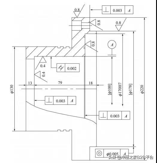
1. 工件及主要精度要求
工件如图1,材料为40Cr锻件,主要精度要求如下:
(1) ∅100mm孔(基准A)的圆柱度0.002mm,孔底对基准A垂直度0.003mm。
(2) ∅178mm外圆对基准A同轴度0.005mm,外圆肩面对基准A垂直度0.003mm。
(3)170H7mm孔底对基准A垂直度0.003mm。

加工实例,如何控制零部件精度?
图1 轴承工件简图
上述精度会影响电主轴的几何精度、运动精度、温升、静态刚度、噪声及寿命等,也会影响电主轴的运动品质。
2. 工艺路线
根据以上工艺方案分析,结合工程实践经验,制定了如下工艺路线:粗车→调质→车→钻、钳→外磨→内磨→精车→热处理(低温时效)→精外磨→精内磨。
其中精外磨和精内磨是保证工件最终精度的关键工序过程。
3.传统工艺下的加工问题
精外磨时使用了专用夹具磨芯轴,可以保证一刀落的∅178mm外圆与肩面的垂直要求,检测该垂直度均在0.001~0.003mm,完全可以满足工件精度要求。
精内磨时,采用三爪轻夹∅138mm外圆,校正∅178mm外圆及肩面均在0.003mm之内,一次装夹磨削∅100mm内孔及孔底、∅170H7mm内孔及孔底。
各项精度仍符合图纸要求,除了内孔圆柱度超差。
这里需要利用三坐标量仪复检工件,内孔发生了较大的内应力变形,圆柱度扩大为0.012mm,内孔尺寸精度和圆柱度均超差。
从孔底向孔口沿轴线方向使用圆度仪测量内孔3个截面的圆度,三个截面圆度误差依次如下:

加工实例,如何控制零部件精度?
图2 工艺改进前工件内孔三截面圆度检测报告
靠近孔口处精度明显好于孔底,三棱型变化趋势明显。
变形原因分析及控制方案
该轴承座工件的加工精度超差主要是由于加工中工件夹紧位置、方向及受力点不恰当引起的。为此进行简单初步的工艺试验,通过减小工件内磨装夹时的三爪夹持力,检查磨削后的工件,发现圆度明显改观,但仍然有3处高点的迹象,可见工件变形导致的精度超差主要是由装夹方式不合理引起的。
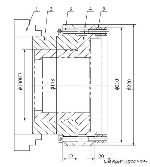
为了解决因装夹变形引起的精度超差问题,改变夹具原有的精内磨装夹方式,改径向三爪夹持为轴向夹持,设计如图3所示内磨夹具工装。

加工实例,如何控制零部件精度?
1. 三爪卡盘 2.内磨夹具主体 3.拉紧螺钉
4.工件 5.内磨夹具压环
图3 内磨夹具简图
原工艺路线合理,只是在精内磨工序中,工件的装夹方法需要改进。
改径向夹持为轴向夹持,工装需要以工件∅130外圆及肩面定位(工件∅130mm外圆与内磨夹具内孔小间隙配合)、∅178mm外圆处肩面拼紧用压盖压紧,固定工件位置来进行精内磨工序内容加工。
具体工艺控制方案如下:
加工变形控制方案实施
通过∅130mm外圆、∅220mm外圆、∅178mm外圆及肩面一次加工,保证精度要求。由于使用了专用的磨芯轴夹具,可以保证一次加工出来的∅178mm,外圆与肩面垂直要求,检测该垂直度均在0.001~0.003mm。完全可以满足工件精度要求,也同时可以满足为后道工序精内磨做工艺基准的要求。
然后在精内磨时,采用三爪夹持内磨夹具外圆,校正∅220mm外圆进行基准过度,校正∅220mm外圆及∅178mm外圆处肩面均在0.003mm之内,一次装夹磨削∅100mm内孔及孔底、∅170H7mm内孔及孔底。在磨削结束后,测量工件的孔径尺寸和圆度都符合图纸要求,并且内孔圆度在0.002mm以内。
最后,将完工工件送三坐标测量机和圆度检测仪进行测量,从孔底向孔口沿轴线方向使用圆度仪测量内孔 3 个截面的圆度,三个截面圆度误差依次如下

加工实例,如何控制零部件精度?
图4 工艺改进后工件内孔三截面圆度检测报告
检测结果均满足图纸要求,内孔3个截面的圆度,均小于0.003 mm的精度要求。
传统机械加工机床趋于统一化,没有精度高低之分,而高精度零件的加工没有相应的专门高精度机械加工机床,因此必须建立新的、完善的专门化高精度机械加工机床,这样对于高精度机械加工的工作人员、流程配置都会有很大帮助。
而案例中采用新的工艺路线和工艺方法,因装夹变形引起的工件精度超差问题已经解决,工件的合格率由原来的20%提高到98%以上,而这些方法和措施也可以推广应用到其他类似工件的加工中。
返回